Appeler pour des tarifs avantageux
+1 (888) 385-682833 avis
À partir de
$3005-29 Kosyomachi , Kanazawa, 920-0932, Japon
Réservations :
+1 (888) 385-682833 avis
1/24

Restaurant
Wifi gratuit
Service en chambre
Service de streaming (comme Netflix)
Climatisation
Bar
Entrée privée
Chambres non-fumeurs
In Kanazawa, Japan, Restaurant & Inn ATSUSHI -Kanazawa- welcomes travelers with a cheerful 2-star vibe. Located at 5-29 Kosyomachi, this inn sits about 3,7mi from the city center, offering a quiet base with easy access to the sights.
Amenities shine for a traveler-friendly stay: an on-site restaurant, free wifi, room service, and streaming service for cozy nights in; air conditioning for comfort; a bar for relaxed evenings; a private entrance and non-smoking rooms; garden views and a garden space to unwind. Practical touches include free toiletries, a bidet, and a bathtub, with kids’ meals available for an extra charge.
With 33 reviews, impressions from guests offer a snapshot of the Kanazawa getaway this inn provides.
On-site dining at Restaurant & Inn ATSUSHI -Kanazawa- offers a diverse menu, with cuisines spanning steakhouse, sushi, Asian, and European fare. After a day of sightseeing, the on-site bar provides a relaxed spot to unwind, and a private entrance adds a touch of ease to arrivals and departures.
Cash is not accepted, and a range of cards is welcomed: Mastercard, Discover, American Express, Visa, JCB, and Diners Club.
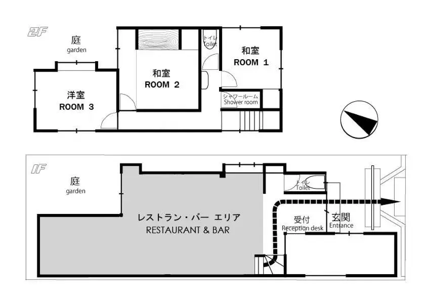
A broad slate of room types awaits, from the Studio and Single options to Japanese Twin and Superior King Garden View. Examples include the Studio (non-smoking; accommodates 2 adults), Japanese Twin (130 sq ft; non-smoking; 2 adults, 1 child; 1 Twin bed), Superior King Garden View (119 sq ft; non-smoking; 2 adults; 1 King bed), Room - 2 Twin, Single Use (97 sq ft; non-smoking; 2 adults; 2 Twin beds), Economy, Single (non-smoking; accommodates 10 adults, 6 children), Japanese Style (non-smoking; 2 adults, 1 child), Economy Triple (non-smoking; 2 adults), Suite (non-smoking; 2 adults, 1 child), Standard Room (97 sq ft; non-smoking; 2 adults, 1 child), Standard 2 Beds (non-smoking; 2 adults, 1 child), and Superior, Garden View (118 sq ft; non-smoking; 2 adults, 1 child with 1 King bed plus 2 Twin beds).
Vous organisez un mariage, un événement d’entreprise ou avez besoin de plusieurs chambres ? Obtenez un devis personnalisé avec des tarifs réduits pour votre groupe.
Aéroports les plus proches
Komatsu Airport
18,6miToyama Airport
29,5miNoto Airport
53miRestaurant
Wifi gratuit
Service en chambre
Service de streaming (comme Netflix)
Climatisation
Bar
Entrée privée
Chambres non-fumeurs
Vue sur le jardin
Jardin
Produits de toilette gratuits
Bidet
Baignoire

Afficher 5 photos
Chambre
1 Lit King Size
2 Lits Simples
120 pi²
Vue sur le jardin
Salle De Bains Privée
Baignoire
Entrée privée
+
Plus de détails
Afficher 3 photos
Chambre De Style Japonais, 2 Lits Simples
1 Lit Simple
130 pi²
Wifi gratuit
Réfrigérateur
+
Plus de détails
Afficher 3 photos
Chambre King
1 Lit King Size
120 pi²
Wifi gratuit
Réfrigérateur
+
Plus de détails

Afficher 2 photos
Chambre
1 Lit Simple
75 pi²
Service de streaming (comme Netflix)
Réfrigérateur
Climatisation
Produits de toilette gratuits
Plus de détails

Afficher 2 photos
Chambre
2 Lits Simples
95 pi²
Vue sur le jardin
Service de streaming (comme Netflix)
Réfrigérateur
Climatisation
Plus de détails
Afficher 4 photos
Suite
Réfrigérateur
+
Plus de détails
Afficher 3 photos
Chambre Standard
Wifi gratuit
Réfrigérateur
+
Plus de détails
Afficher 2 photos
Chambre
Wifi gratuit
Réfrigérateur
+
Plus de détails
Afficher 2 photos
Chambre Standard, 2 lits
Réfrigérateur
+
Plus de détails
Chambre King
1 Lit King Size
x4
+
x3
Plus de détails
Studio
Plus de détails
7.2
33 avisCatégories d'évaluations
Propreté
Confort
Emplacement
Installations
Personnel
Rapport qualité-prix
Qualité du WiFi
Attractions
Kenroku-en Garden
0,2miAttractions
Kenroku-en Garden
0,2miAéroports
Komatsu Airport
18,6miToyama Airport
29,5miNoto Airport
53miRestaurant & Inn AT SUSHI
Cuisines
Restaurant
Wifi gratuit
Service en chambre
Service de streaming (comme Netflix)
Climatisation
Bar
Entrée privée
Chambres non-fumeurs
Vue sur le jardin
Jardin
Produits de toilette gratuits
Bidet
Baignoire
Accessibilité
Étages supérieurs accessibles uniquement par escaliers
Logement entier situé au rez-de-chaussée
Activités
Cours de cuisine
Dîners à thème
Galeries d'art temporaires
Tour ou cours sur la culture locale
Tournées des bars
Chambre
Armoire ou placard
Dressing
Linge de lit
Réveil
Cuisine
Bouilloire électrique
Machine à café
Réfrigérateur
Distanciation physique
Paiement sans espèces disponible
Équipements de la chambre
Prise près du lit
Espace de vie
Bureau
Extérieur
Jardin
Fonctionnalités de sécurité
Purificateurs d'air
Général
Chambres non-fumeurs
Chauffage
Climatisation
Entrée privée
Espace fumeur désigné
Établissement non-fumeur
Hypoallergénique
Service en chambre
Sols en bois dur ou parquet
Internet
Wifi gratuit
Médias & Technologie
iPad
Service de streaming (comme Netflix)
Télévision
Nourriture & Boisson
Bar
Bouilloire
Café sur place
Repas enfants
Repas spéciaux (sur demande)
Restaurant
Vin/Champagne
Salle de bain
Baignoire
Bidet
Chaussons
Papier toilette
Peignoir
Produits de toilette gratuits
Salle De Bains Commune
Salle De Bains Privée
Sèche-cheveux
Serviettes
Toilette partagée
Toilettes
Sécurité
Accès par clé
Alarme de sécurité
Détecteurs de fumée
Extincteurs
Vidéosurveillance dans les espaces communs
Vidéosurveillance extérieure
Sécurité alimentaire & boissons
Livraison de repas en chambre
Services de nettoyage
Ménage quotidien
Services de réception
Facture fournie
Vue
Vue sur cour intérieure
Vue sur le jardin
Pets are not allowed.
WiFi is available in all areas and is free of charge.
The minimum age for check-in is 18
Come and go whenever you want
Parking may not be available
Réservations
Appelez-nous pour nos meilleurs tarifs quotidiens
+1 (888) 385-6828Politiques enfants
Children of all ages are welcome.
To see correct prices and occupancy info, add the number and ages of children in your group to your search.
Politiques sur les lits bébé et lits d'appoint
No capacity for extra beds or cribs.
Discover,
Mastercard,
American Express,
Visa,
JCB,
Diners Club
Cet établissement n'accepte pas l'espèce.

2-15-1 Hon-Machi, Kanazawa-Shi, Kanazawa, 920-0853, Japon
1,3mi de l'hôtel actuel
Excellent
3 553 avis
À partir de

15-58 Yasuecho, Kanazawa, 920-0854, Japon
0,9mi de l'hôtel actuel
Excellent
347 avis
À partir de

Nomachi 2-33-19-1, Kanazawa, 921-8031, Japon
1,1mi de l'hôtel actuel
Excellent
500 avis
À partir de

Honmachi 2-1-14 , Kanazawa, 920-0853, Japon
1,1mi de l'hôtel actuel
Excellent
642 avis
À partir de

Kazuemachi 3-22 Ishikawa, Kanazawa, 920-0908, Japon
0,6mi de l'hôtel actuel
Excellent
51 avis
À partir de

Yuwakuarayamachi 67-1, Kanazawa, 920-1122, Japon
7,2mi de l'hôtel actuel
Très bien
48 avis
À partir de

3-30 Oyamamachi, Kanazawa, Ishikawa, 920-0918, Japon
0,7mi de l'hôtel actuel
Très bien
917 avis
À partir de

1-3-31, Hirooka, Kanazawa, 920-0031, Japon
1,6mi de l'hôtel actuel
Bon
458 avis
À partir de

Asaji Joudoji 119-9, Takaoka, 932-0122, Japon
12,2mi de l'hôtel actuel
Bon
33 avis
À partir de
Hôtels en vedette
Hôtels en vedette
Villes à proximité