Anrufen für Top-Preise
+1 (888) 385-68281.072 Bewertungen
Ab
$102Chikko 1-4-4 , Tamano, 706-0002, Japan
Reservierungen:
+1 (888) 385-68281.072 Bewertungen
1/57

Restaurant
Kostenloses WLAN
Klimaanlage
Sonnendeck
Terrasse
Nichtraucherzimmer
Balkon
Uno Port Inn is a friendly 2-star guest house in Tamano, Japan. Address: Chikko 1-4-4. Located about 1,7mi from the city center, it serves as a breezy base for day trips and neighborhood strolls.
On-site highlights include a restaurant, free WiFi, and air conditioning. Outdoor spaces feature a sun deck and a terrace, while rooms are non-smoking and offer balconies. Private parking is available for an extra charge.
Reviews tally to 1072, offering traveler perspectives to consider. Price starts from $102, inviting a cozy stay in this Tamano locale.
On-site dining adds a tasty note to the Tamano stay at UPINN カフェ, a Modern American spot that keeps things relaxed between day trips. The on-site restaurant brings a contemporary vibe to meals, pairing well with the breezy atmosphere of the guest house.
Outdoor spaces invite evenings on the sun deck or terrace, while rooms stay non-smoking and feature their own balconies—an easy way to savor sea air and sunshine after a day of exploring.
Practical details help plan the trip: private parking is available for an extra charge, and a wide range of payment methods are accepted including cash and major cards (American Express, Mastercard, Discover, Diners Club, Visa, JCB). The property sits about 1,7mi from the city center, offering a breezy base for day trips and neighborhood strolls.
Planen Sie eine Hochzeit, eine Firmenveranstaltung oder benötigen Sie viele Zimmer? Erhalten Sie ein individuelles Angebot mit Gruppenrabatt.
Nächste Flughäfen
Okayama Airport
19miTakamatsu Airport
19,7miTokushima Airport
44,9miHiroshima Airport
59miRestaurant
Kostenloses WLAN
Klimaanlage
Sonnendeck
Terrasse
Nichtraucherzimmer
Balkon

Zeige 7 Fotos
Zimmer, 2 Einzelbetten
2 Einzelbetten
Eigenes Badezimmer
Klimaanlage
Kühlschrank
Dusche
x4
+
x3
Mehr Details
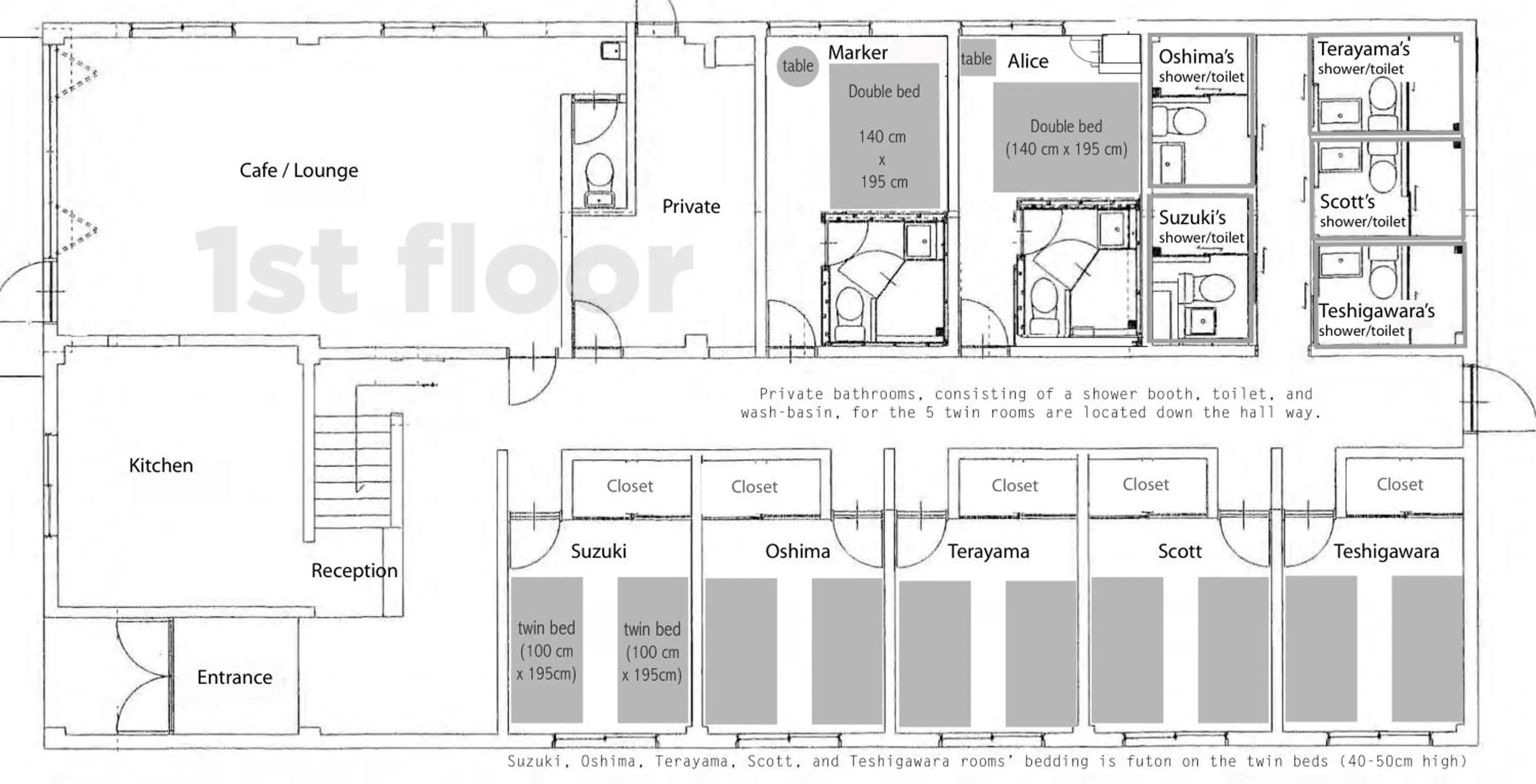
The twin room provides air conditioning, tatami, as well as a private external bathroom featuring a walk-in shower and a hairdryer. The twin room features a wardrobe, tumble dryer and yukata. The unit offers 2 beds.

Zeige 4 Fotos
Zimmer, Doppelbett Oder 2 Einzelbetten
Doppelbett Oder 2 Einzelbetten
Eigenes Badezimmer
Klimaanlage
Kühlschrank
Dusche
Mehr Details
The twin/double room offers air conditioning, tatami, as well as a private bathroom boasting a walk-in shower and a hairdryer. A wardrobe, tumble dryer and yukata are offered in this twin/double room. The unit has 2 futons.

Zeige 7 Fotos
Zimmer, Eigenes Badezimmer
Eigenes Badezimmer
Klimaanlage
Kühlschrank
Dusche
Mehr Details
Featuring free toiletries, this double room includes a private bathroom with a walk-in shower, a hairdryer and slippers. The double room features air conditioning, tumble dryer, parquet floors as well as yukata. The unit has 1 bed.

Zeige 9 Fotos
Zimmer
Eigenes Badezimmer
Klimaanlage
Kühlschrank
Dusche
x10
+
x6
Mehr Details
Offering free toiletries, this double room includes a private bathroom with a walk-in shower, a hairdryer and slippers. The double room offers air conditioning, tumble dryer, parquet floors along with yukata. The unit has 1 bed.

Zeige 7 Fotos
Suite, Terrasse
Eigenes Badezimmer
Terrasse
Klimaanlage
Kühlschrank
x5
+
x3
Mehr Details
The air-conditioned suite features 1 bedroom and 1 bathroom with a walk-in shower and a hairdryer. The suite has tatami floors and provides a seating area, a wardrobe as well as a terrace with sea views. The unit offers 5 futons.

Zeige 16 Fotos
Zimmer, 2 Einzelbetten, Gemeinschaftsbad
2 Einzelbetten
x4
+
x3
Mehr Details

Zeige 7 Fotos
Standardzimmer, 2 Einzelbetten
2 Einzelbetten
x4
+
x3
Mehr Details

Zeige 14 Fotos
Zimmer, Gemeinschaftsbad
x10
+
x6
Mehr Details

Zeige 14 Fotos
Standardzimmer
x10
+
x6
Mehr Details

Zeige 20 Fotos
Suite
x8
+
x5
Mehr Details
Zimmer, 2 Einzelbetten, Futon
2 Einzelbetten
1 Futon-Matratze
Mehr Details
The twin room features air conditioning, tatami, as well as a private bathroom boasting a walk-in shower and a hairdryer. The unit has 2 beds.
Zimmer, Futon
1 Futon-Matratze
x3
+
Mehr Details
This twin room features air conditioning and futon mattresses.
8.9
1.072 BewertungenBewertungskategorien
Sauberkeit
Komfort
Lage
Ausstattung
Personal
Preis-Leistungs-Verhältnis
WLAN-Qualität
Sehenswürdigkeiten
Okayama Korakuen Garden
12miKurashiki Bikan Historical Quarter (Kurashiki Bikan Chiku)
12,5miOhara Museum of Art (Ohara Bijutsukan)
12,6miSehenswürdigkeiten
Okayama Korakuen Garden
12miKurashiki Bikan Historical Quarter (Kurashiki Bikan Chiku)
12,5miOhara Museum of Art (Ohara Bijutsukan)
12,6miFlughäfen
Okayama Airport
19miTakamatsu Airport
19,7miTokushima Airport
44,9miHiroshima Airport
59miUPINN カフェ
Küchen
Ambientes
Restaurant
Kostenloses WLAN
Klimaanlage
Sonnendeck
Terrasse
Nichtraucherzimmer
Balkon
Aktivitäten
Happy Hour
Allgemein
Ausgewiesener Raucherbereich
Heizung
Klimaanlage
Moskitonetz
Nichtraucher-Unterkunft
Nichtraucherzimmer
Parkettböden
Badezimmer
Badewanne oder Dusche
Dusche
Eigenes Badezimmer
Haartrockner
Handtücher
Hausschuhe
Toilette
Toilettenpapier
Barrierefreiheit
Gesamte Einheit im Erdgeschoss
Obergeschosse nur über Treppen erreichbar
Essen & Trinken
Kaffeehaus vor Ort
Restaurant
Snack-Bar
Essen & Trinksicherheit
Frühstück zum Mitnehmen
Gemeinschaftsbereiche
Gemeinschaftslounge/TV-Bereich
Im Freien
Balkon
Sonnendeck
Terrasse
Internet
Kostenloses WLAN
Körperliche Distanzierung
Bargeldlose Zahlung verfügbar
Küche
Kühlschrank
Trockner
Parken
Privatparkplatz
Reinigungsdienste
Tägliche Zimmerreinigung
Wäscherei
Rezeptionsdienste
Gepäckaufbewahrung
Rechnung vorhanden
Schlafzimmer
Bettwäsche
Kleiderschrank oder Garderobe
Sicherheit & Schutz
Feuerlöscher
Kohlenmonoxid-Detektor
Rauchmelder
Sicherheitsalarm
Überwachungskameras außerhalb der Unterkunft
Überwachungskameras in Gemeinschaftsbereichen
Sicherheitsmerkmale
Erste-Hilfe-Sets verfügbar
Luftreiniger
Zugang zu medizinischem Fachpersonal
Zimmerausstattung
Steckdose am Bett
Pets are not allowed.
WiFi is available in all areas and is free of charge.
The minimum age for check-in is 18
Come and go whenever you want
Private parking is available at a location nearby (reservation is needed) and charges may apply.
Reservierungen
Rufen Sie uns an für unsere besten Tagespreise
+1 (888) 385-6828Kinderregelungen
Children over 3 are welcome.
To see correct prices and occupancy info, add the number and ages of children in your group to your search.
Richtlinien für Kinderbetten und Zustellbetten
No capacity for extra beds or cribs.
Bargeld
Mastercard,
JCB,
Diners Club,
Visa,
American Express,
Discover,
Cash only
Diese Unterkunft akzeptiert Bargeld.

15-1 Ekimotocho, Kita-Ku, Okayama, 701-0024, Japan
12,1mi vom aktuellen Hotel
Sehr gut
1.260 Bewertungen
Ab

Kita-Ku Kitanagase Omotecho 3-1-8, Okayama, 700-0962, Japan
11,5mi vom aktuellen Hotel
Ausgezeichnet
479 Bewertungen
Ab

9-1 Furujin-Machi, Takamatsu, 760-0025, Japan
11,6mi vom aktuellen Hotel
Sehr gut
1.677 Bewertungen
Ab

直島町3843-11, Kagawa, 761-3110, Japan
2,9mi vom aktuellen Hotel
Ausgezeichnet
431 Bewertungen
Ab

Achi 3-14-5, Okayama, 710-0055, Japan
12,7mi vom aktuellen Hotel
Sehr gut
1.497 Bewertungen
Ab

Shougun Tonoshouko1135, Takamatsu, 761-4106, Japan
13,3mi vom aktuellen Hotel
Gut
669 Bewertungen
Ab

2-2-26 Chuo The One Five Garden Kurashiki, Kurashiki, 710-0046, Japan
12,7mi vom aktuellen Hotel
Sehr gut
10 Bewertungen
Ab

Kitacho 6-ku 2505-2, Takamatsu, 760-0080, Japan
13,1mi vom aktuellen Hotel
Gut
20 Bewertungen
Ab

11-1 Fukuda-machi, Takamatsu, 760-0048, Japan
12mi vom aktuellen Hotel
Angenehm
0 Bewertungen
Ab
Ausgewählte Hotels
Ausgewählte Hotels
Nahegelegene Städte
Beliebte Städte